汝所寻,吾所为
You need to find, Design
Uni-fied
作 品
Projects
我 们
Us
消 息
News
域 菲 +
Plus
联 络
Contact
酒 店 商 业
办 公 金 融
文 化 展 示
教 育 医 疗
船 舶 舾 装
公 司 介 绍
团 队 简 介
奖 项 荣 誉
首页
>
作品
>
文化展览
>
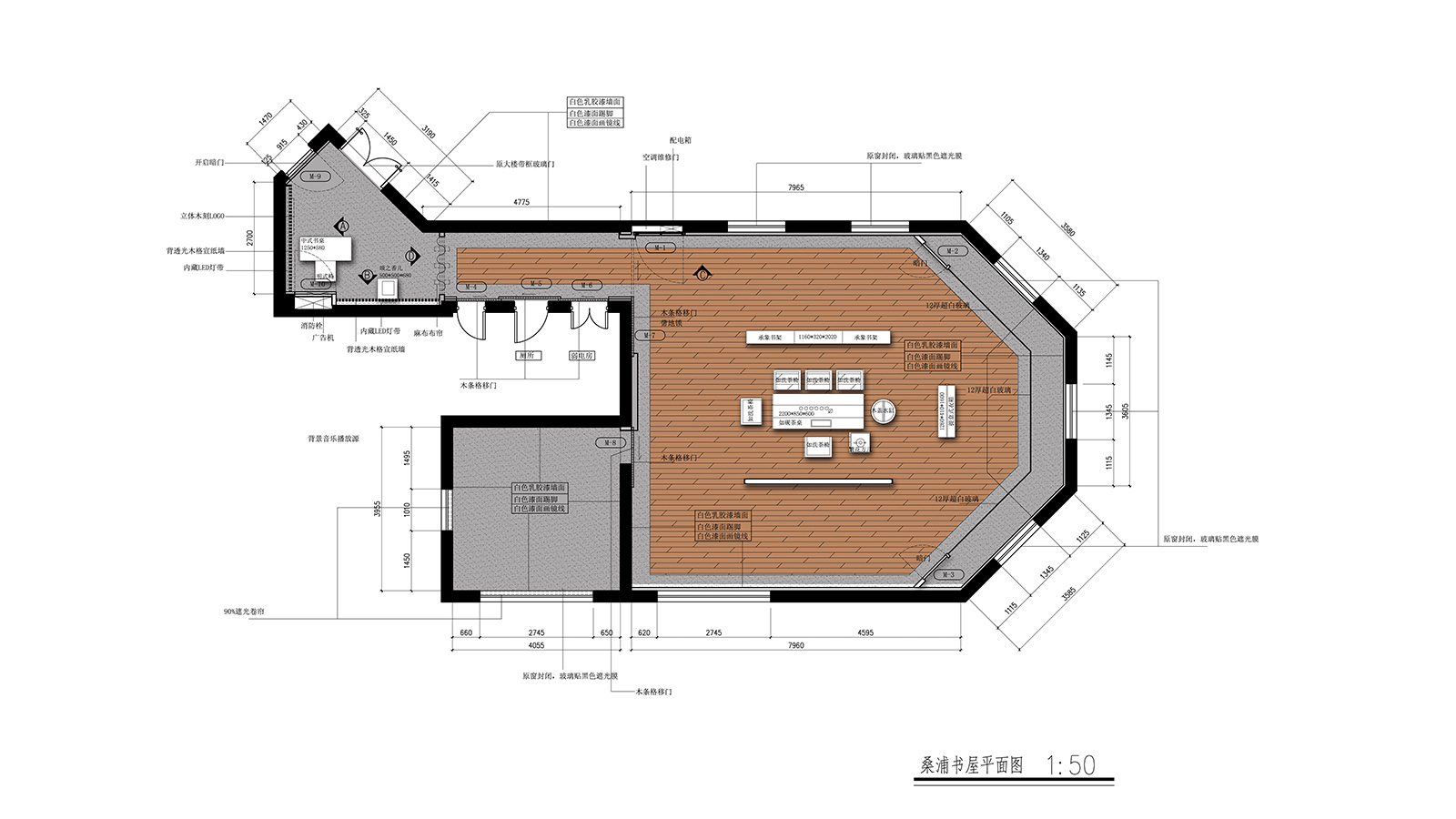
上海桑浦美术馆
项目地点:上海市江宁路356号
项目面积:138㎡
项目投资:200万元
设 计 师:阮菲
上海桑浦美术馆 2014