汝所寻,吾所为
You need to find, Design
Uni-fied
作 品
Projects
我 们
Us
消 息
News
域 菲 +
Plus
联 络
Contact
酒 店 商 业
办 公 金 融
文 化 展 示
教 育 医 疗
船 舶 舾 装
公 司 介 绍
团 队 简 介
奖 项 荣 誉
首页
>
作品
>
办公金融
>
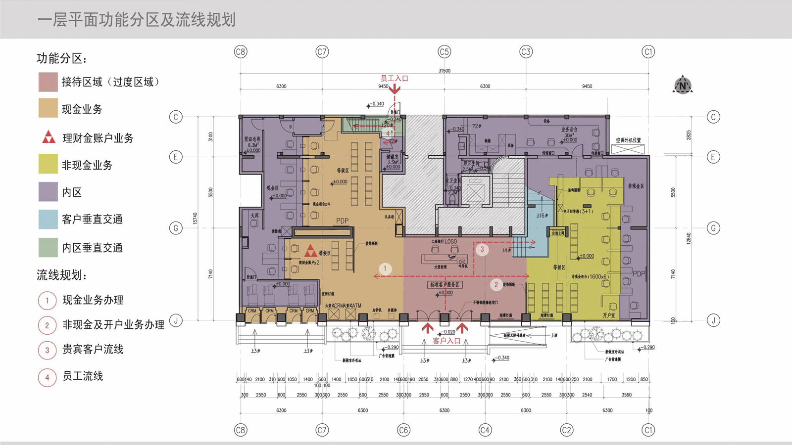
ICBC虹桥古北新区支行
项目地点:黄金城道918号
项目面积:1200㎡
项目投资:420万元
设 计 师:方璐
ICBC虹桥古北新区支行 2011